realitní služby financování nemovitostí realitní poradenství investice obchod s nemovitostmi Vše s nemovitostmi

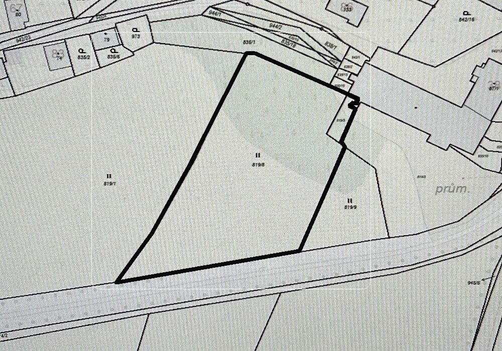
Pozemek 4.631 m2 k výstavbě RD na okraji obce Stráž u Domažlic.

Číslo zakázky:
281025
Typ zakázky:
Prodej
Stav zakázky:
Aktivní
Druh smlouvy:
Výhradní
Typ nemovitosti:
Pozemek, Stavební bydlení
Kraj:
Plzeňský kraj
Okres:
Domažlice
Katastrální území:
Stráž u Domažlic
Obec:
Stráž
Cena:
860 Kč za m2

Soubor dvou pozemků o celkové výměře 4.631 m2 k individuální výstavbě samostatného rodinného domu nebo více samostatných domů k trvalému bydlení v klidné okrajové lokalitě obce Stráž s panoramatickým výhledem do otevřené krajiny. Plocha pozemků je určena územním plánem jako zastavitelné území okrajové části obce, tzv. plocha pro bydlení v rodinných domech (BO) a je součástí plochy „Stráž-jihozápad“ s možností umístění max. 10 rodinných domů dle stávající územní studie. Pozemek s možností výstavby samostatného RD nebo max. čtyř RD pro individuální trvalé či rekreační bydlení s doplňkovými stavbami (garáž, vedlejší stavby, přístupové prostranství…) bez jakýchkoli zásadních regulativů omezujících budoucí výstavbu. Součástí nabídky je vyhotovená územní studie pro max. 4 RD dle které lze realizovat případné rozdělení pozemku k budoucí výstavbě. Soubor pozemků navazuje po celé šířce na veřejnou příjezdovou komunikaci, okolní zástavbu 1x provozního objektu, bez jakékoli jiné okolní blízké zástavby, navazující na volnou plochu zemědělských pozemků s travním porostem. Lokace pozemku v mírně svažitém terénu (JZ) s možností realizace výstavby nového RD s ideální orientací na jihozápad. Možnost budoucího napojení na veřejný vodovod, povrchovou kanalizaci a rozvody elektřiny v dosahu přes navazující pozemky ve vlastnictví obce. Nabízené pozemky jsou využitelné k výstavbě samostatného rodinného domu nebo max. 4x RD v klidné přírodní vesnické lokalitě s panoramatickým výhledem do krajiny na pohoří Šumavy, cca 3 km od okresního města Domažlice s kompletními službami, veřejnou infrastrukturou a kompletní občanskou vybaveností. V případě zájmu lze nabídnout k odprodeji navazující zemědělský pozemek o výměře 5.388 m2. Předností nabízeného pozemku je lokace v klidné otevřené krajině, okrajové části obce Stráž, rozloha a variabilita pozemku s možností realizace individuální výstavby vesnického rodinného domu nebo max. 4 domů dle představ nového vlastníka a lokace pozemku v obci v blízkosti okresního historického města Domažlice. Inženýrské sítě: dostupnost pozemku z veřejné zpevněné komunikace, možnost napojení na rozvody elektrické sítě cca 50 m od hranice pozemku, možnost napojení na veřejnou povrchovou kanalizaci a veřejný vodovod. Výměra pozemků celkem: 4.631 m2

Možno hypotéka:
Ano
Plocha parcely:
4631 m2
Kanalizace:
V dosahu
Plyn:
Není
Voda:
V dosahu
Elektřina na pozemku:
V dosahu
Budova na pozemku:
Ne
Ekologická zátěž:
Ne
Charakter obce:
Vesnice
Orientace:
JZ
Typ vlastnictví:
Osobní
Zástavní právo:
Není
Dopravní dostupnost:
II. třída, Auto
Volný ihned:
Ano
Volný od:
07.03.2025

Financování




 

Novinky emailem